Itri luminoso appartamento di circa 97 mq
3 letti
2 bagni
97 m²
€230.000
Richiedi informazioni
Informazioni Immobile
- Cod.: A739
- Categoria Immobile: Vendita
- Tipo : Appartamento, Residenziale
- Locali/Vani: 4
- Camere da letto: 3
- Bagni: 2
- Area, m²: 97 m²
Descrizione
-
Descrizione:
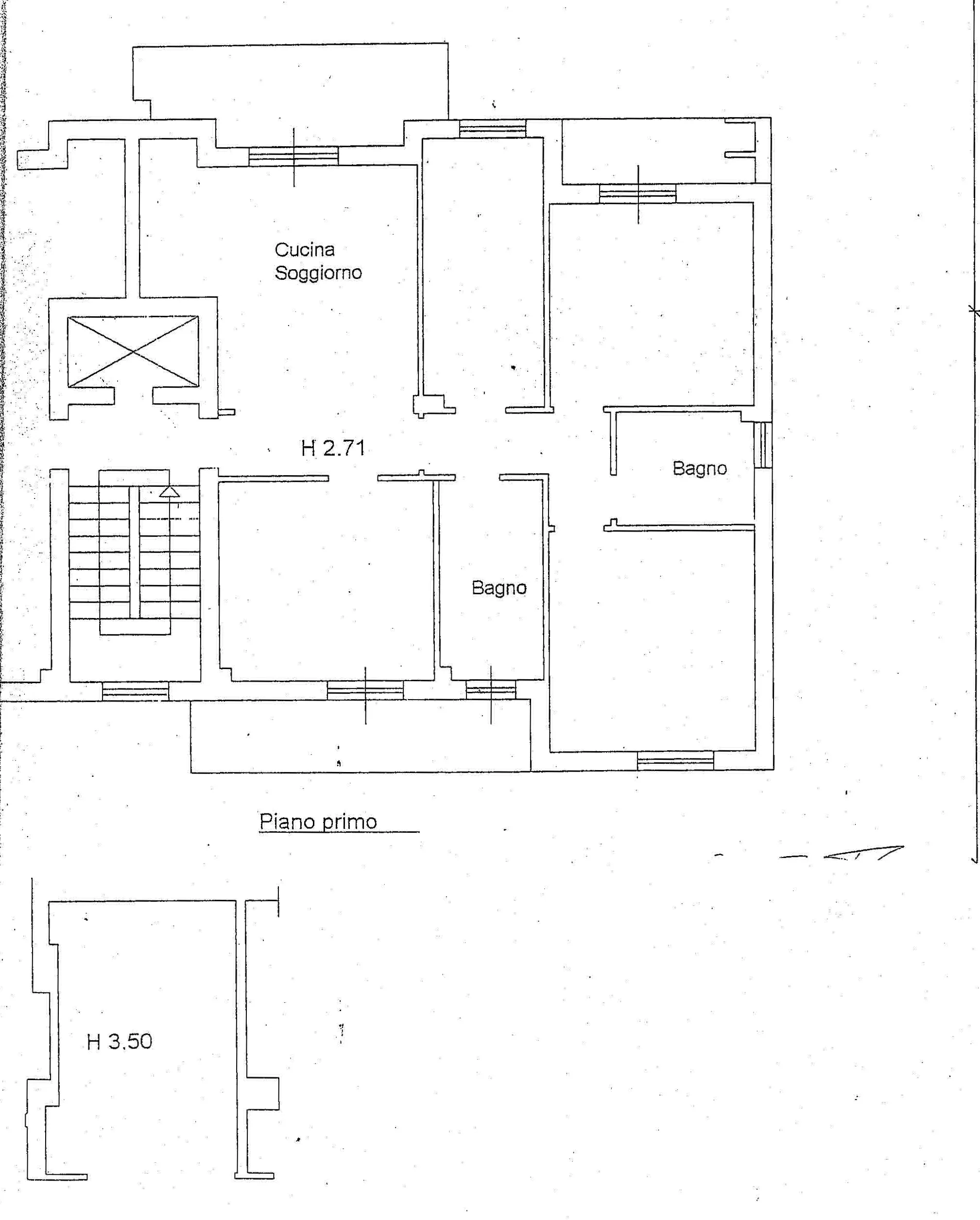
Itri – Via Giovenco A pochi passi dal centro e situato in un elegante fabbricato moderno, proponiamo in vendita un luminoso appartamento di circa 97 mq, posto al primo piano servito da ascensore. L’immobile è in ottime condizioni è termoautonomo e si compone di: ampio salotto, cucina abitabile, due spaziose camere matrimoniali, cameretta, due bagni completi. Due balconate panoramiche, una con vista sul Castello e l’altra con affaccio sui monti. Completano la proprietà un comodo garage con posto auto antistante, ideale per chi cerca praticità e comfort. Soluzione ideale per famiglie, grazie alla posizione strategica, tranquilla ma vicina a tutti i principali servizi.
Posizione
- Città/Dipartimento: Itri
